Konstruktion / Material 3 – Metall
PFLICHTSEMINAR TECHNOLOGIE / 3. SEMESTER BACHELOR
Prof. Holger Neumann, WM Julian Ribler
Endergebnisse
Fahnen
Umsetzung in der Werkstatt
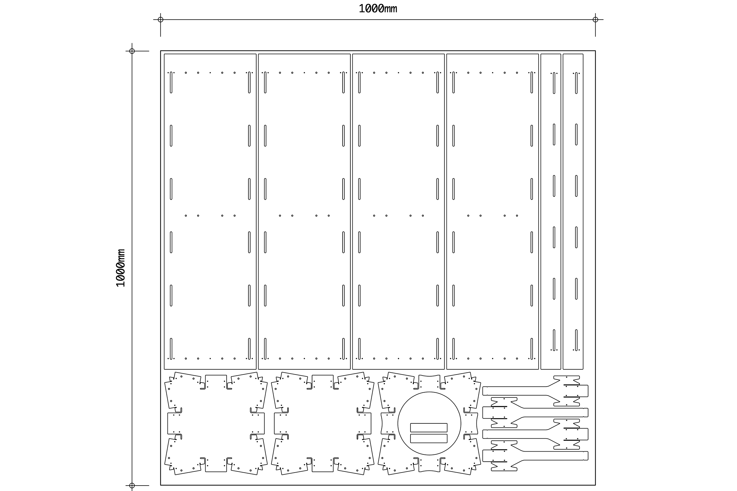
Abwicklungen für die Laserfirma System 180 GmbH
Entwürfe
Enpräsentation
Gastvortrag Experte Malte Licht
Exkursion
Mindmap
SEMINARANGEBOT – COURSE OVERVIEW
„Zwei mal Drei“ von Sophia Ludwig und Luisa Beutel
Blech ist eines der wichtigsten Metall-Halbzeuge. Insbesondere Stahl- und Aluminiumblech ist von grundlegender Bedeutung für die Herstellung design-relevanter Objekte. Bleche werden dabei nicht nur für Gehäuse, sondern auch für Lasten-abtragende Konstruktionselemente, Maschinenteile aber auch Monomaterial-Produkte eingesetzt. Wir werden verschiedene Werkstoffe sowie die wesentlichen Be- und Verarbeitungstechniken dieser Werkstoffgruppe ausführlich kennenlernen und uns das für DesignerInnen wichtige Know-how aneignen.
Das Objekt soll aus ausgelaserten und gekanteten Blechelementen bestehen. Alle abgewickelten Elemente müssen auf eine Fläche von 990 x 990 mm passen, wobei ein Mindestabstand von 5 mm zwischen den einzelnen Teilen bestehen muss. Kantungen werden durch gelaserte Perforationen vereinfacht. Die Fertigung der Blechabwicklung erfolgt durch unseren Projektpartner System 180 GmbH.
Besonderen Wert wird auf einen effizienten Materialeinsatz sowie eine dem Prozess und dem Material angemessene Formensprache gelegt. Gemeint ist eine konstruktive Eleganz, die das Zusammenspiel zwischen Konstruktion, Statik und gestalterischer Qualität verkörpert
Anforderungen
– Regelmäßige aktive Teilnahme
– Teilnahme am CAD Seminar
– Referat
– Entwurf
– 3D-Datensatz und Prototyp
– Dokumentation + PosterKooperationspartner
Kooperationspartner
Kooperationspartner System 180 GmbH
Externer Experte: Dipl. Des. Malte Licht https://oxyd-gmbh.de/
Betreuer
Prof. Holger Neumann
WM Julian Ribler





























































